Rif: M - 21
SALA BOLOGNESE
BOLOGNA
Sala Bolognese, fraz. Padulle.
Questa mattina ci troviamo a Padulle, dove Guercino Immobiliare propone questo comodo appartamento al primo piano in una palazzina di poche unità, di recente costruzione e in ottimo stato di manutenzione.
L'immobile è dotato di:
- Video citofono
- Infissi in doppio vetro ad alte prestazioni
- Clima in pompa di calore
- Cancello automatico
- Zanzariere
- Tendone parasole
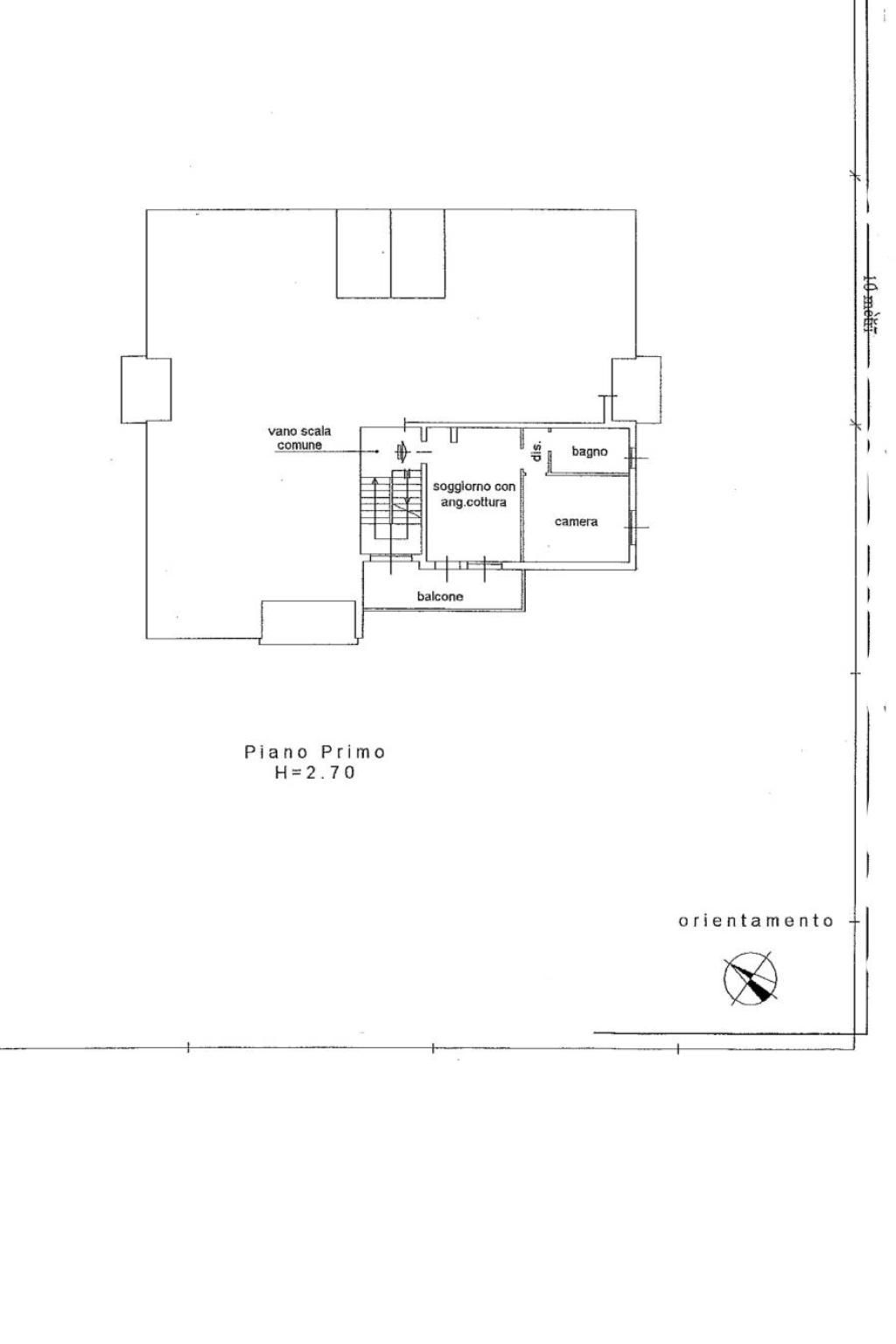
DISPOSIZIONE INTERNA:
- Soggiorno in openspace con cucina a vista e accesso diretto al terrazzo
- Bagno
- Camera Matrimoniale
- Disimpegno
La palazzina è ideale anche per chi ha ridotte capacità motorie in quanto è installato nel vano scale il montascale.
Al piano terra si trova il garage con attacchi acqua ed inoltre un posto auto scoperto di proprietà all'interno della corte del palazzo, al quale sii accede tramite cancello automatico.
E' presente anche un comodo giardino comune.
Questa mattina ci troviamo a Padulle, dove Guercino Immobiliare propone questo comodo appartamento al primo piano in una palazzina di poche unità, di recente costruzione e in ottimo stato di manutenzione.
L'immobile è dotato di:
- Video citofono
- Infissi in doppio vetro ad alte prestazioni
- Clima in pompa di calore
- Cancello automatico
- Zanzariere
- Tendone parasole
DISPOSIZIONE INTERNA:
- Soggiorno in openspace con cucina a vista e accesso diretto al terrazzo
- Bagno
- Camera Matrimoniale
- Disimpegno
La palazzina è ideale anche per chi ha ridotte capacità motorie in quanto è installato nel vano scale il montascale.
Al piano terra si trova il garage con attacchi acqua ed inoltre un posto auto scoperto di proprietà all'interno della corte del palazzo, al quale sii accede tramite cancello automatico.
E' presente anche un comodo giardino comune.
Consistenze
| Descrizione | Superficie | Sup. comm. |
|---|---|---|
| Principali | ||
| Immobile - 1° piano | 50 Mq | 50 Mqc |
| Terrazza - 1° piano | 11 Mq | 3 Mqc |
| Box/Garage - piano terra | 16 Mq | 8 Mqc |
| Posto auto | 14 Mq | 4 Mqc |
| Totale | 65 Mqc | |









