Rif: DM - 7
CENTO
FERRARA
Cento, fraz. Dodici Morelli.
Questa mattina siamo a Dodici Morelli, dove Guercino Immobiliare propone questa spaziosa villetta a schiera su 2 livelli e con un comodo scoperto privato.
L'immobile fa parte di un piccolo complesso di sole 3 unità, SENZA spese condominiali.
La casa si trova in buono stato d'uso e offre tutto lo spazio di cui hai bisogno.
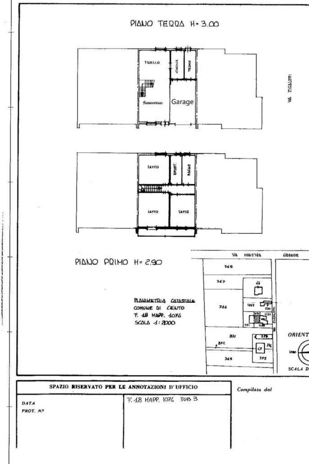
PIANO TERRA:
- Ampio soggiorno con camino in openspace
- Tinello
- Cucina
- Locale termo
- Garage di circa 20 mq
PRIMO PIANO:
- 3 Camere matrimoniali di cui una con balcone
- Studiolo
- Bagno
Esternamente si trova il giardino pavimentato di circa 40 mq.
Questa mattina siamo a Dodici Morelli, dove Guercino Immobiliare propone questa spaziosa villetta a schiera su 2 livelli e con un comodo scoperto privato.
L'immobile fa parte di un piccolo complesso di sole 3 unità, SENZA spese condominiali.
La casa si trova in buono stato d'uso e offre tutto lo spazio di cui hai bisogno.
PIANO TERRA:
- Ampio soggiorno con camino in openspace
- Tinello
- Cucina
- Locale termo
- Garage di circa 20 mq
PRIMO PIANO:
- 3 Camere matrimoniali di cui una con balcone
- Studiolo
- Bagno
Esternamente si trova il giardino pavimentato di circa 40 mq.
Consistenze
| Descrizione | Superficie | Sup. comm. |
|---|---|---|
| Principali | ||
| Immobile - piano terra | 60 Mq | 60 Mqc |
| Box/Garage - piano terra | 20 Mq | 10 Mqc |
| Immobile - 1° piano | 78 Mq | 78 Mqc |
| Balcone - 1° piano | 7 Mq | 2 Mqc |
| Totale | 150 Mqc | |









