Rif: M - 38
CREVALCORE
BOLOGNA
Crevalcore, fraz. Palata Pepoli
Questa mattina ci troviamo a Palata Pepoli, dove Guercino Immobiliare propone questo immobile composto da abitazione con magazzino e giardino.
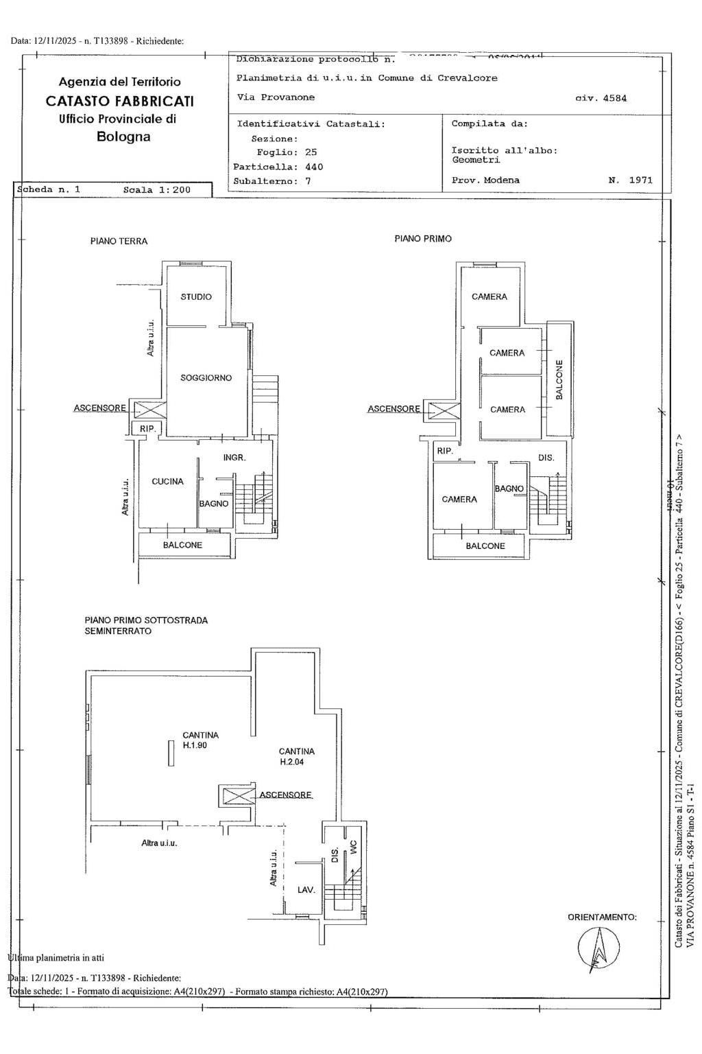
L'abitazione è disposta su 2 livelli ed offre la possibilità, se lo si preferisce, di essere suddivisa in 2 appartamenti indipendenti di circa 90mq ognuno; gli impianti sono già predisposti per questo eventuale uso.
DOTAZIONI :
- Inferriate
- Zanzariere
- Doppi vetri
- 6 Kw di pannelli fotovoltaici
- Ascensore
- Triplo bagno
- Climatizzatori
- Cancello automatico
DISPOSIZIONE PIANO TERRA :
- Ingresso arredabile
- Soggiorno
- Studio
- Cucina abitabile con balcone e dispensa
- Bagno
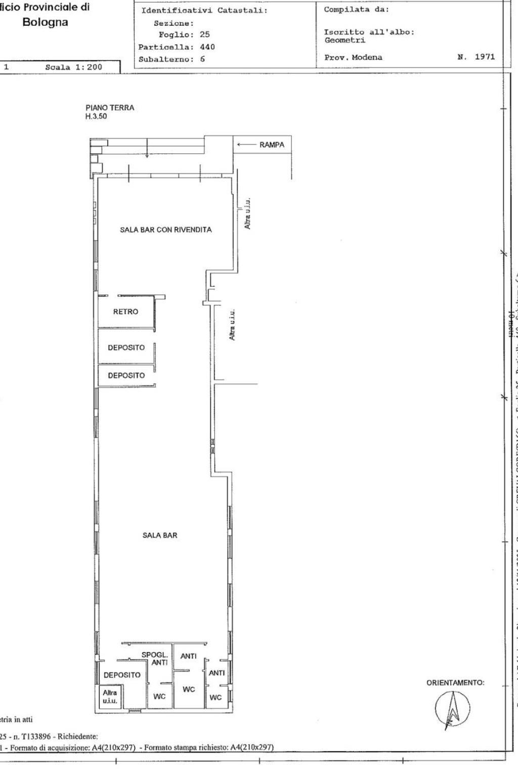
- Locale di oltre 300 mq utilizzabile come estensione dell'abitazione o magazzino, attualmente accatastato come bar.
- Ascensore
PRIMO PIANO :
- 4 camere di cui 3 con balcone
- Disimpegno
- Ripostiglio
- Bagno
- Ascensore
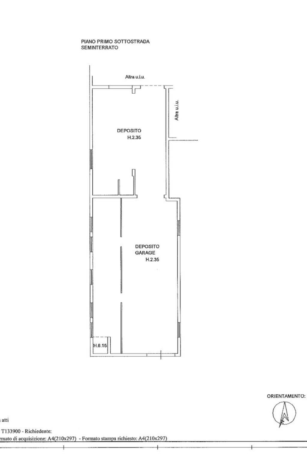
PIANO SEMINTARRATO .
- Doppia zona cantina di circa 140 mq
- Lavanderia
- Bagno
- Ascensore
- Garage
- Depostio
- Zona garage aggiuntiva di ampie metrature
ESTERNAMENTE :
- Scoperto di circa 1500 mq in parte adibito a giardino in parte asfaltato
- Zona bbq
- Zona parcheggio
Questa mattina ci troviamo a Palata Pepoli, dove Guercino Immobiliare propone questo immobile composto da abitazione con magazzino e giardino.
L'abitazione è disposta su 2 livelli ed offre la possibilità, se lo si preferisce, di essere suddivisa in 2 appartamenti indipendenti di circa 90mq ognuno; gli impianti sono già predisposti per questo eventuale uso.
DOTAZIONI :
- Inferriate
- Zanzariere
- Doppi vetri
- 6 Kw di pannelli fotovoltaici
- Ascensore
- Triplo bagno
- Climatizzatori
- Cancello automatico
DISPOSIZIONE PIANO TERRA :
- Ingresso arredabile
- Soggiorno
- Studio
- Cucina abitabile con balcone e dispensa
- Bagno
- Locale di oltre 300 mq utilizzabile come estensione dell'abitazione o magazzino, attualmente accatastato come bar.
- Ascensore
PRIMO PIANO :
- 4 camere di cui 3 con balcone
- Disimpegno
- Ripostiglio
- Bagno
- Ascensore
PIANO SEMINTARRATO .
- Doppia zona cantina di circa 140 mq
- Lavanderia
- Bagno
- Ascensore
- Garage
- Depostio
- Zona garage aggiuntiva di ampie metrature
ESTERNAMENTE :
- Scoperto di circa 1500 mq in parte adibito a giardino in parte asfaltato
- Zona bbq
- Zona parcheggio
Consistenze
| Descrizione | Superficie | Sup. comm. |
|---|---|---|
| Principali | ||
| Immobile - piano terra | 87 Mq | 87 Mqc |
| Balcone - piano terra | 8 Mq | 2 Mqc |
| Altro - piano terra | 315 Mq | 315 Mqc |
| Immobile - 1° piano | 87 Mq | 87 Mqc |
| Balcone - 1° piano | 8 Mq | 2 Mqc |
| Balcone - 1° piano | 9 Mq | 3 Mqc |
| Cantina - piano interrato | 149 Mq | 37 Mqc |
| Box/Garage - piano interrato | 17 Mq | 8 Mqc |
| Box/Garage - piano interrato | 245 Mq | 122 Mqc |
| Totale | 663 Mqc | |









