Rif: CO - 13
CENTO
FERRARA
Cento, fraz. Corporeno.
Questa mattina siamo nella campagna di Corporeno, dove Guercino Immobiliare propone questa bella casa ristrutturata e con un grande giardino.
L'immobile è ideale per chiunque sia alla ricerca di grandi spazi, quiete e relax, senza essere però troppo distante dalle comodità cittadine.
L'abitazione è stata oggetto di ristrutturazione ed ulteriormente rifinita una decina di anni fa.
DOTAZIONI:
- Infissi ad alte prestazioni
- Caldaia a condensazione di circa 2 anni
- Camino a legna
- Zanzariera
- Inferriate al piano terra
- Allarme
ESTERNAMENTE:
- Grande giardino privato di circa 800 mq
- Casetta in muratura regolarmente accatastata
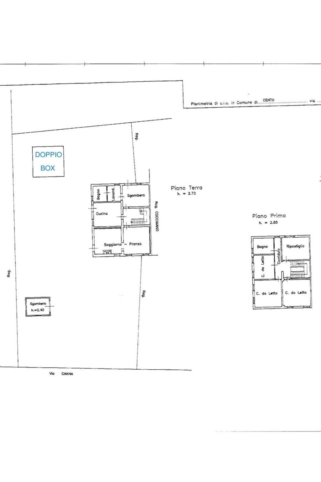
- Doppio box auto
PIANO TERRA:
- Soggiorno con camino e accesso diretto al giardino
- Sala da pranzo in semi openspace col soggiorno
- Cucina abitabile con accesso diretto al giardino
- Ampio disimpegno arredabile
- Ripostiglio
- Sgombero di finestrato e di ampie metrature (circa 16 mq)
- Bagno
- Lavanderia
PRIMO PIANO:
- 3 camere
- Ripostiglio finestrato da rifinire e di ampie metrature (circa 16mq)
- Bagno
- Corridoio
Libera subito
Questa mattina siamo nella campagna di Corporeno, dove Guercino Immobiliare propone questa bella casa ristrutturata e con un grande giardino.
L'immobile è ideale per chiunque sia alla ricerca di grandi spazi, quiete e relax, senza essere però troppo distante dalle comodità cittadine.
L'abitazione è stata oggetto di ristrutturazione ed ulteriormente rifinita una decina di anni fa.
DOTAZIONI:
- Infissi ad alte prestazioni
- Caldaia a condensazione di circa 2 anni
- Camino a legna
- Zanzariera
- Inferriate al piano terra
- Allarme
ESTERNAMENTE:
- Grande giardino privato di circa 800 mq
- Casetta in muratura regolarmente accatastata
- Doppio box auto
PIANO TERRA:
- Soggiorno con camino e accesso diretto al giardino
- Sala da pranzo in semi openspace col soggiorno
- Cucina abitabile con accesso diretto al giardino
- Ampio disimpegno arredabile
- Ripostiglio
- Sgombero di finestrato e di ampie metrature (circa 16 mq)
- Bagno
- Lavanderia
PRIMO PIANO:
- 3 camere
- Ripostiglio finestrato da rifinire e di ampie metrature (circa 16mq)
- Bagno
- Corridoio
Libera subito
Consistenze
| Descrizione | Superficie | Sup. comm. |
|---|---|---|
| Principali | ||
| Immobile - piano terra | 118 Mq | 118 Mqc |
| Immobile - piano terra | 118 Mq | 118 Mqc |
| Box/Garage - piano terra | 14 Mq | 7 Mqc |
| Box/Garage - piano terra | 14 Mq | 7 Mqc |
| Cantina - piano terra | 13 Mq | 3 Mqc |
| Giardino/Resede | 700 Mq | 70 Mqc |
| Totale | 323 Mqc | |









