Rif: M - 28
CENTO
FERRARA
Cento, fraz. Pilastrello
Questa mattina ci troviamo a Pilastrello, e Guercino Immobiliare propone questa porzione di bifamiliare con grande giardino, disposta tutta al piano terra.
Esternamente si trova il grande giardino di circa 1000 mq, dove una piccola parte di questo è stato ghiaiato per ospitare diverse auto al suo interno.
Sempre esternamente si trova il comodo garage, il pozzo e un grande patio con tendone richiudibile, ideale per pranzi e cene all'aperto con amici e parenti.
Sotto al garage è presente anche una cantina interrata accessibile tramite la botola.
INTERNAMENTE:
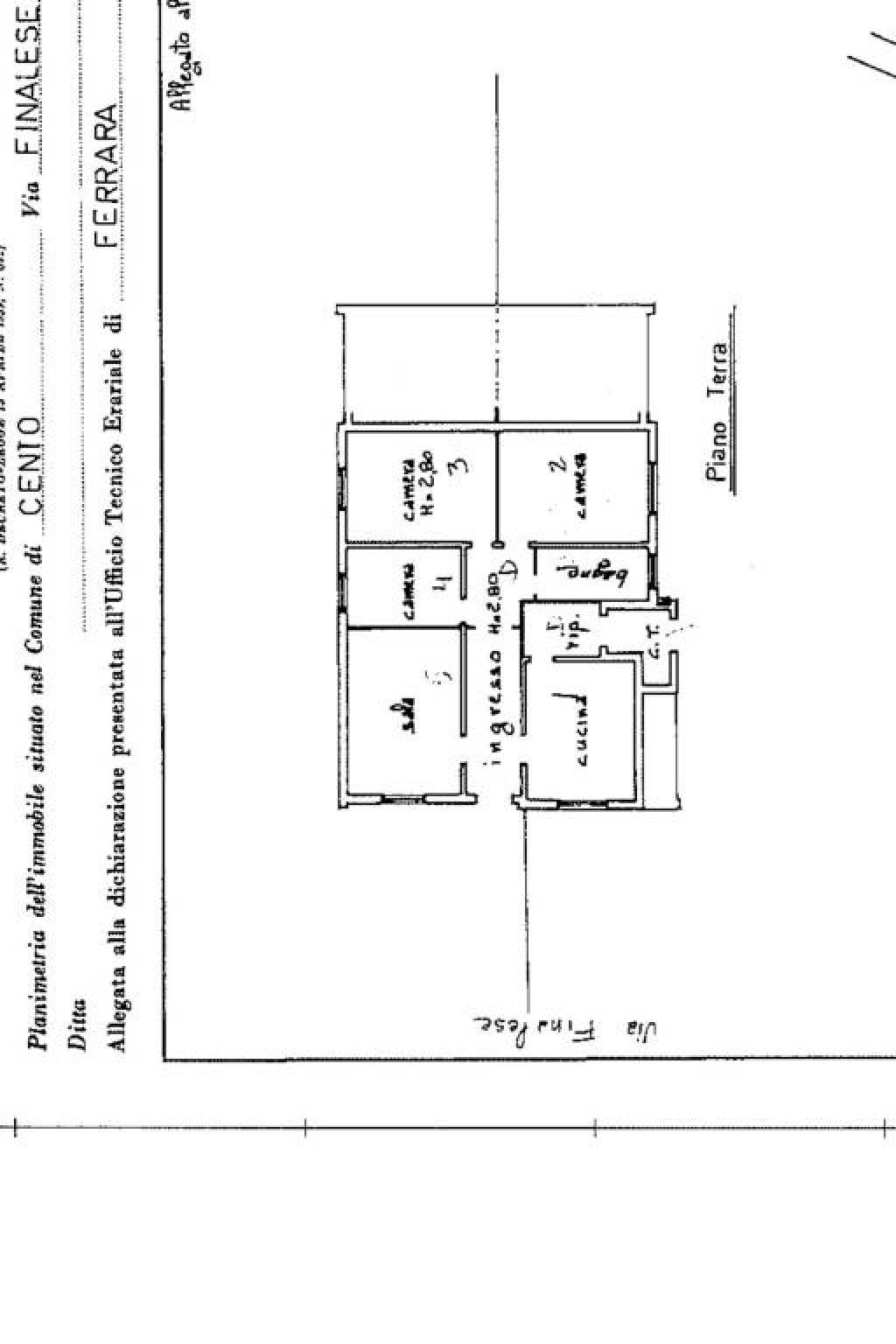
- Ingresso arredabile
- Soggiorno
- Cucina abitabile con ripostiglio attualmente adibito a cucinotto
- Centrale termica utilizzabile anche come ripostiglio
ZONA NOTTE:
- 2 Matrimoniali
- 1 Singola
- Disimpegno
- Bagno
L'abitazione si trova in buono stato di utilizzo generale, ha i doppi vetri, le inferriate, le zanzariere ed ha anche l'impianto di climatizzazione.
Questa mattina ci troviamo a Pilastrello, e Guercino Immobiliare propone questa porzione di bifamiliare con grande giardino, disposta tutta al piano terra.
Esternamente si trova il grande giardino di circa 1000 mq, dove una piccola parte di questo è stato ghiaiato per ospitare diverse auto al suo interno.
Sempre esternamente si trova il comodo garage, il pozzo e un grande patio con tendone richiudibile, ideale per pranzi e cene all'aperto con amici e parenti.
Sotto al garage è presente anche una cantina interrata accessibile tramite la botola.
INTERNAMENTE:
- Ingresso arredabile
- Soggiorno
- Cucina abitabile con ripostiglio attualmente adibito a cucinotto
- Centrale termica utilizzabile anche come ripostiglio
ZONA NOTTE:
- 2 Matrimoniali
- 1 Singola
- Disimpegno
- Bagno
L'abitazione si trova in buono stato di utilizzo generale, ha i doppi vetri, le inferriate, le zanzariere ed ha anche l'impianto di climatizzazione.
Consistenze
| Descrizione | Superficie | Sup. comm. |
|---|---|---|
| Principali | ||
| Immobile - piano terra | 130 Mq | 130 Mqc |
| Giardino/Resede | 1.000 Mq | 100 Mqc |
| Box/Garage - piano terra | 20 Mq | 10 Mqc |
| Cantina - piano interrato | 16 Mq | 4 Mqc |
| Totale | 244 Mqc | |









