Rif: R1 - 24
CENTO
FERRARA
Cento, fraz. Renazzo
Questa mattina ci troviamo a Renazzo, e Guercino Immobiliare propone questa bella villa in bifamiliare, ideale anche come soluzione genitori-figli.
L'immobile è suddiviso in 2 abitazioni di cui una al primo piano ed una al secondo, mentre al piano terra si trova una grande zona servizi con anche il doppio garage.
ESTERNAMENTE:
- Giardino privato di circa 150 mq
- Scoperto privato (attualmente ghiaiato) di circa 150 mq
- Ingresso con cancello automatico
PIANO TERRA:
- Doppia autorimessa collegata internamente
- Taverna
- Lavanderia
- Disimpegno arredabile
- Ripostiglio
PRIMO PIANO:
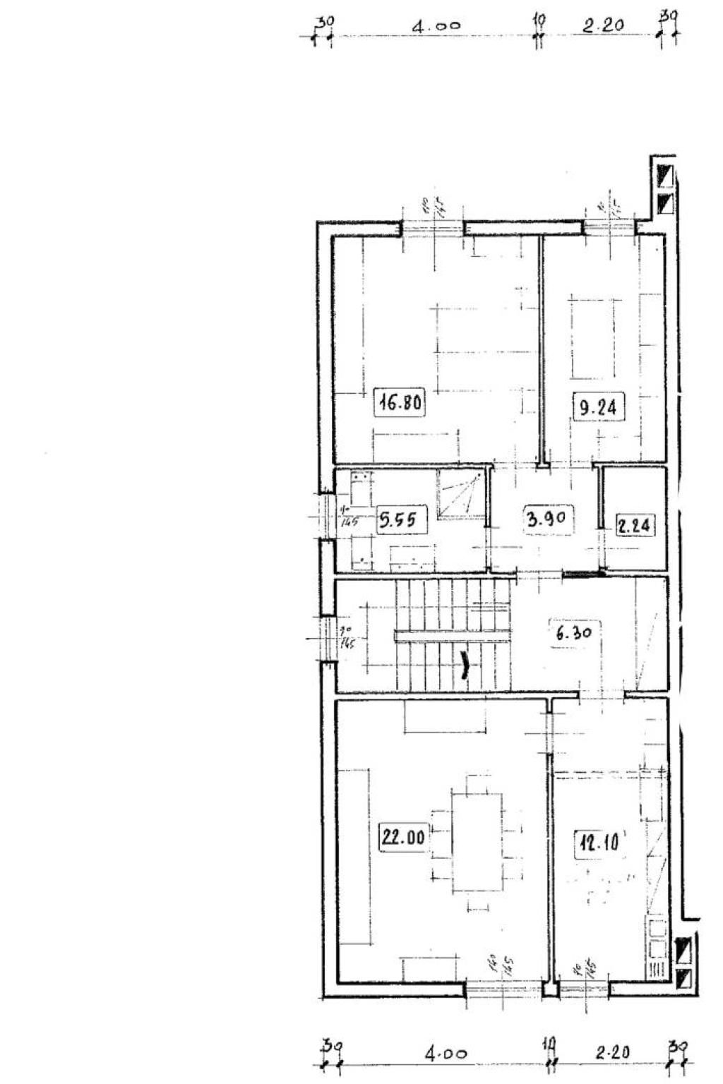
- Soggiorno e cucinotto separati (ma che possono essere unificati togliendo la piccola tramezza)
- Matrimoniale
- Singola
- Disimpegno
- Ripostiglio
- Bagno
SECONDO PIANO:
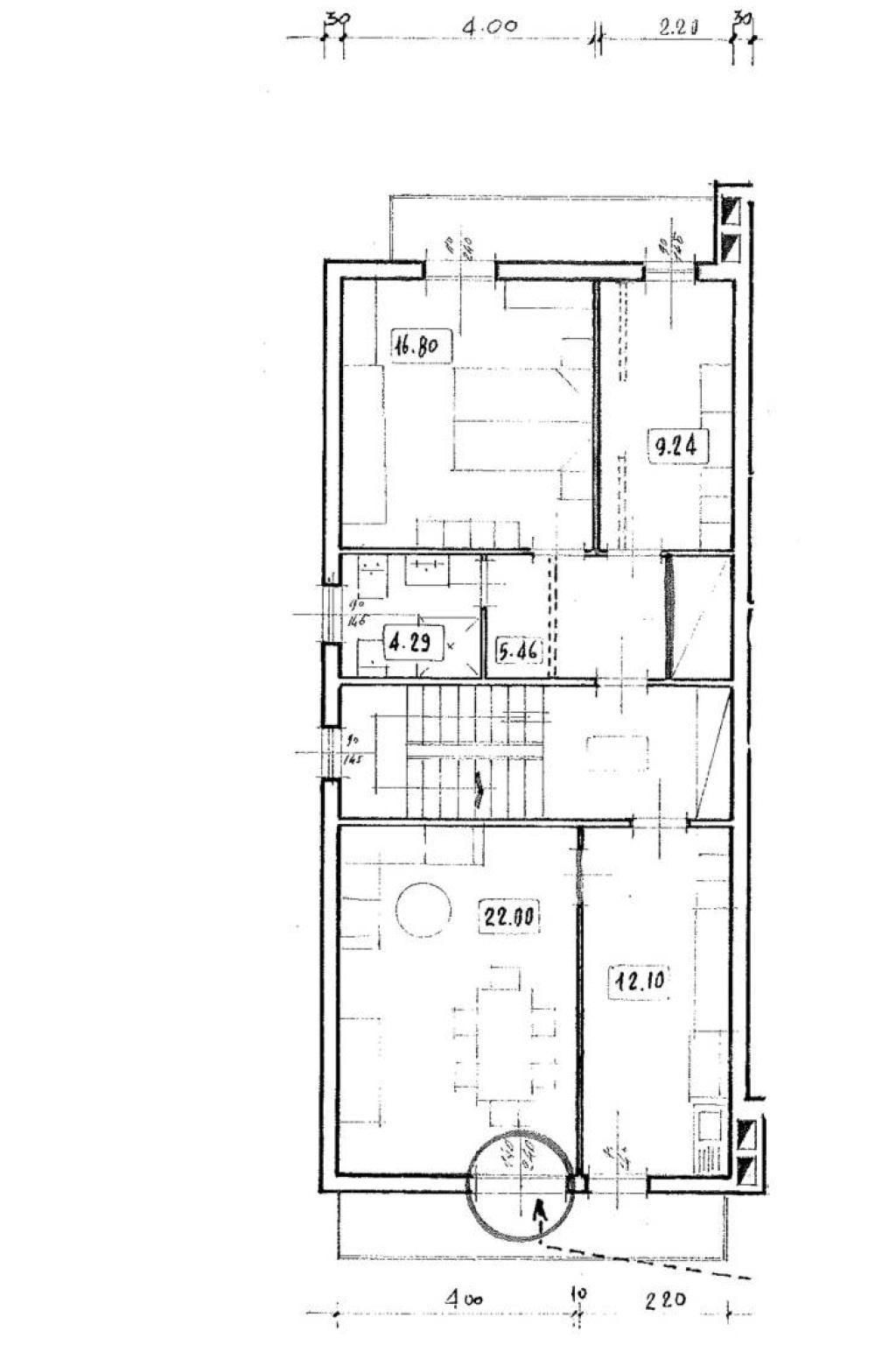
- Soggiorno e cucinotto separati (ma che possono essere unificati togliendo la piccola tramezza)
- Matrimoniale
- Singola
- Disimpegno
- Ripostiglio
- Bagno
Questa mattina ci troviamo a Renazzo, e Guercino Immobiliare propone questa bella villa in bifamiliare, ideale anche come soluzione genitori-figli.
L'immobile è suddiviso in 2 abitazioni di cui una al primo piano ed una al secondo, mentre al piano terra si trova una grande zona servizi con anche il doppio garage.
ESTERNAMENTE:
- Giardino privato di circa 150 mq
- Scoperto privato (attualmente ghiaiato) di circa 150 mq
- Ingresso con cancello automatico
PIANO TERRA:
- Doppia autorimessa collegata internamente
- Taverna
- Lavanderia
- Disimpegno arredabile
- Ripostiglio
PRIMO PIANO:
- Soggiorno e cucinotto separati (ma che possono essere unificati togliendo la piccola tramezza)
- Matrimoniale
- Singola
- Disimpegno
- Ripostiglio
- Bagno
SECONDO PIANO:
- Soggiorno e cucinotto separati (ma che possono essere unificati togliendo la piccola tramezza)
- Matrimoniale
- Singola
- Disimpegno
- Ripostiglio
- Bagno
Consistenze
| Descrizione | Superficie | Sup. comm. |
|---|---|---|
| Principali | ||
| Immobile - piano terra | 52 Mq | 52 Mqc |
| Box/Garage - piano terra | 37 Mq | 18 Mqc |
| Immobile - 1° piano | 92 Mq | 92 Mqc |
| Balcone - 1° piano | 7 Mq | 2 Mqc |
| Balcone - 1° piano | 5 Mq | 2 Mqc |
| Immobile - 2° piano | 92 Mq | 92 Mqc |
| Giardino/Resede | 150 Mq | 15 Mqc |
| Esterno - piano terra | 150 Mq | 15 Mqc |
| Totale | 288 Mqc | |









