Rif: R3 - 3
CENTO
FERRARA
Cento, fraz. Renazzo.
Oggi ci troviamo a Renazzo, e Guercino Immobiliare propone questo comodissimo appartamento tutto al piano terra.
L'abitazione è al momento affittata, e sarebbe una soluzione ideale per eventuali investitori.
L'abitazione si trova in zona tranquilla ma a pochi passi dal centro, è dotato di tutti i comfort e gli spazi sono ben distribuiti.
Doppio ingresso indipendente, uno sul retro ed uno dal comodo giardinetto.
DOTAZIONI:
- Infissi ad alte prestazioni energetiche
- Climatizzazione in pompa di calore
- Inferriate
- Zanzariere
INTERNAMENTE:
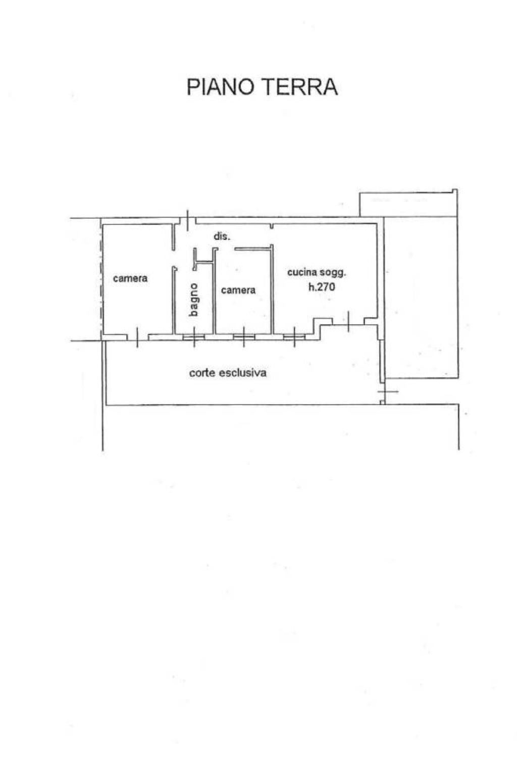
- Soggiorno-cucina
- 2 camere
- Bagno
- Disimpegno
ESTERNAMENTE:
- Scoperto privato di oltre 35mq
- Garage
ECCELLENTI CONDIZIONI E BASSE SPESE DI GESTIONE.
Oggi ci troviamo a Renazzo, e Guercino Immobiliare propone questo comodissimo appartamento tutto al piano terra.
L'abitazione è al momento affittata, e sarebbe una soluzione ideale per eventuali investitori.
L'abitazione si trova in zona tranquilla ma a pochi passi dal centro, è dotato di tutti i comfort e gli spazi sono ben distribuiti.
Doppio ingresso indipendente, uno sul retro ed uno dal comodo giardinetto.
DOTAZIONI:
- Infissi ad alte prestazioni energetiche
- Climatizzazione in pompa di calore
- Inferriate
- Zanzariere
INTERNAMENTE:
- Soggiorno-cucina
- 2 camere
- Bagno
- Disimpegno
ESTERNAMENTE:
- Scoperto privato di oltre 35mq
- Garage
ECCELLENTI CONDIZIONI E BASSE SPESE DI GESTIONE.
Consistenze
| Descrizione | Superficie | Sup. comm. |
|---|---|---|
| Principali | ||
| Immobile - piano terra | 60 Mq | 60 Mqc |
| Giardino/Resede | 36 Mq | 4 Mqc |
| Box/Garage - piano terra | 13 Mq | 6 Mqc |
| Totale | 70 Mqc | |









