Rif: DM - 37
CENTO
FERRARA
Cento, fraz. Dodici Morelli.
La proposta di oggi di Guercino Immobiliare è un bellissimo locale, tutto al piano terra, con 3 grandi vetrine e con affaccio su una delle vie principali del paese.
Il negozio è stato recentemente rimesso a nuovo, oggetto della trattativa di vendita sono le mura del negozio.
Libero da Aprile 2023.
3 grandi vetrate e posti auto comodissimi per la clientela.
Affaccio su strada ad alto passaggio.
La proposta di oggi di Guercino Immobiliare è un bellissimo locale, tutto al piano terra, con 3 grandi vetrine e con affaccio su una delle vie principali del paese.
Il negozio è stato recentemente rimesso a nuovo, oggetto della trattativa di vendita sono le mura del negozio.
Libero da Aprile 2023.
3 grandi vetrate e posti auto comodissimi per la clientela.
Affaccio su strada ad alto passaggio.
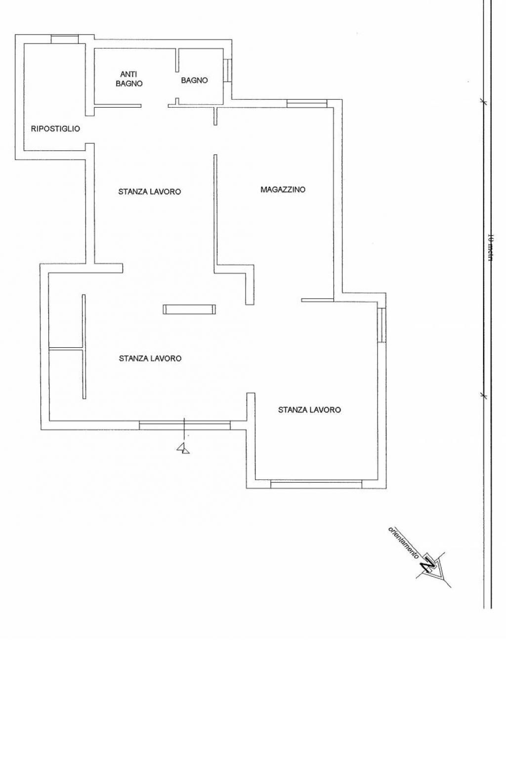
Consistenze
| Descrizione | Superficie | Sup. comm. |
|---|---|---|
| Principali | ||
| Negozio - piano terra | 20 Mq | 20 Mqc |
| Negozio - piano terra | 30 Mq | 30 Mqc |
| Negozio - piano terra | 20 Mq | 20 Mqc |
| Magazzino - piano terra | 20 Mq | 20 Mqc |
| Magazzino - piano terra | 8 Mq | 8 Mqc |
| Negozio - piano terra | 9 Mq | 9 Mqc |
| Totale | 107 Mqc | |









