Rif: CO - 22
CENTO
FERRARA
Cento fraz. Corporeno. Guercino Immobiliare Vende :
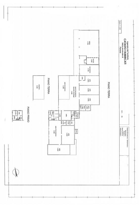
Capannoni attualmente adibiti a lavorazione e deposito prodotti ortofrutticoli siti a Corporeno con affaccio sulla Statale che congiunge Cento a Ferrara (ottima Visibilità) vicino al centro commerciale "Bennet". Il complesso Immobiliare è di circa 3000 mq con uffici, ampio piazzale, l'area di proprietà su cui sorge il fabbricato è di circa 7000 mq ( catastalmente censiti in categoria D/1).
La zona è completamente urbanizzata e dotata di tutti i servizi di urbanizzazione primaria, quali gas, acqua, fognature, telefono, ecc. ecc. ideale per supermercato, concessionaria auto e altri usi artigianali.
Lo stabilimento in esame è confinante con parti esistenti a prevalente destinazione residenziale
- Libero Subito
- Info in ufficio
**** Competenza, cordialità e trasparenza: queste le peculiarità dell'agenzia Guercino Immobiliare specializzata nella compravendita e nella locazione di immobili residenziali e commerciali. Siamo presenti nel territorio Centese da oltre 20 anni per assicurarvi prospettive d'acquisto o di vendita concrete, sicure e proficue. A questo proposito, viene garantita una scrupolosa assistenza tecnica, legale, fiscale e finanziaria: dalla mera consulenza alla valutazione dell'immobile sino alla ricerca di un mutuo e alla stesura del contratto preliminare di compravendita o del contratto di locazione. Mirati investimenti pubblicitari nell'editoria specializzata e tramite portali di settore con un'attenzione particolare alle nuove tecnologie offrono un validissimo ed efficace strumento alla promozione dei beni immobili. Il cliente non viene lasciato mai solo, viene seguito fino alla stipula del rogito definitivo di compravendita e successivamente allo stesso viene garantita un adeguata assistenza per l'eventuale messa a reddito dell'immobile acquistato. ..Da 20 anni ad oggi.. La NOSTRA priorità è la VOSTRA soddisfazione.. I nostri servizi: - Compravendite - Locazioni - Stesure e Rinnovi Contratti di Locazione - Certificazioni Energetiche - Perizie di Stima - Finanziamenti e Mutui - Acquisti immobiliari in ASTA
Capannoni attualmente adibiti a lavorazione e deposito prodotti ortofrutticoli siti a Corporeno con affaccio sulla Statale che congiunge Cento a Ferrara (ottima Visibilità) vicino al centro commerciale "Bennet". Il complesso Immobiliare è di circa 3000 mq con uffici, ampio piazzale, l'area di proprietà su cui sorge il fabbricato è di circa 7000 mq ( catastalmente censiti in categoria D/1).
La zona è completamente urbanizzata e dotata di tutti i servizi di urbanizzazione primaria, quali gas, acqua, fognature, telefono, ecc. ecc. ideale per supermercato, concessionaria auto e altri usi artigianali.
Lo stabilimento in esame è confinante con parti esistenti a prevalente destinazione residenziale
- Libero Subito
- Info in ufficio
**** Competenza, cordialità e trasparenza: queste le peculiarità dell'agenzia Guercino Immobiliare specializzata nella compravendita e nella locazione di immobili residenziali e commerciali. Siamo presenti nel territorio Centese da oltre 20 anni per assicurarvi prospettive d'acquisto o di vendita concrete, sicure e proficue. A questo proposito, viene garantita una scrupolosa assistenza tecnica, legale, fiscale e finanziaria: dalla mera consulenza alla valutazione dell'immobile sino alla ricerca di un mutuo e alla stesura del contratto preliminare di compravendita o del contratto di locazione. Mirati investimenti pubblicitari nell'editoria specializzata e tramite portali di settore con un'attenzione particolare alle nuove tecnologie offrono un validissimo ed efficace strumento alla promozione dei beni immobili. Il cliente non viene lasciato mai solo, viene seguito fino alla stipula del rogito definitivo di compravendita e successivamente allo stesso viene garantita un adeguata assistenza per l'eventuale messa a reddito dell'immobile acquistato. ..Da 20 anni ad oggi.. La NOSTRA priorità è la VOSTRA soddisfazione.. I nostri servizi: - Compravendite - Locazioni - Stesure e Rinnovi Contratti di Locazione - Certificazioni Energetiche - Perizie di Stima - Finanziamenti e Mutui - Acquisti immobiliari in ASTA
Consistenze
| Descrizione | Superficie | Sup. comm. |
|---|---|---|
| Principali | ||
| Immobile - piano terra | 101 Mq | 101 Mqc |
| Capannone - piano terra | 2.950 Mq | 2.950 Mqc |
| Ufficio - piano terra | 150 Mq | 150 Mqc |
| Totale | 3.201 Mqc | |









